2019-08-08 10:11:14 責任編輯: 全球經典標識與導視設計 0
寫字樓的形象標識牌,主要用于展示企業形象及標示企業位置。簡潔明快的設計,時尚新穎的用料,都是使形象標識牌成為企業形象及實力輸出窗口的關鍵所在。與此同時,此類標識也是企業文化的重要組成部分,因此其在現代企業中的應用越來越廣泛。
銀行與商務行業往往有著干練、嚴謹、細致的行業特征。專業性決定品牌形象與品牌特征都需要明確的導視系統,才能讓客戶在進行金融服務或商業活動時感受到品牌的文化特色,讓客戶在服務的過程中感受到品牌的文化內涵。可以說,企業辦公導視系統的品牌表現特征最為明顯。

Arbeiterkammer Wien的入門處

833柯林斯銀行中心位于中庭處的巨大導視牌
ANZ因其鮮明的專業特征和敬業的企業精神而聞名,擁有超過6500名員工的它們,亟需一個具有獨特文化內涵和鮮明品牌特征的導視系統。


作為整個建筑主體設計的延伸,導視系統的設計靈感來源于建筑平面中不斷變化所展現出的細節,以及城市居住空間的概念設計。通過嚴謹的設計、改造,設計師將建筑設計的風格與導視系統的功能作為空間的一種延伸,而不僅僅是空間里多余的修飾。這是一系列與建筑和諧并存,并且在建筑和設計上都能達到相互映襯的作品。


除了考慮到設計美感方面如何與建筑主體相呼應以外,最重要的一個因素就是導視系統覆蓋的范圍,包括配備3部獨立電梯的13個樓層,以及采光通風的中庭。


Arbeiterkammer Wien
AK是一家由澳大利亞工人群體、普通雇員和消費者組成的合法代表組織。它為組織的會員提供專業、合理的建議,站在勞動者的角度替他們處理各種復雜的勞工問題。



設計項目主要針對AK的主體大樓進行標識和導視系統的設想和設計。通過對以往功能的轉變、形象設計的創新,以及大樓的建筑設計,該項目的總設計師讓這棟建于1950年的大樓在保持原有特色的基礎上顯得美輪美奐。
在咨詢室旁的走廊上,一進門就可以看到一個用玻璃橫梁懸掛的大型立體字母,代表著不同功能的分區。
在圖書館的門口,可以看到一個巨型而且色調以鮮紅色為主的大型裝飾物,從遠處看就會發現其實這個裝飾物是一本立體的書。


在大樓的導視系統中,另外一個很重要的特點就是在現代的設計中,仍能體現出大樓的歷史特點,這些體現在對AK大樓特別選用的材料及字體設計。整個系統的Soleil字體包括符號和大小寫字母等都是與專業字體設計師Wolfgang Homola合作的設計作品。



休閑空間
休閑空間要營造一個舒適、放松、安逸的休憩場所。在導視系統的設計上,字體和顏色的設計是最為關鍵的。字體和顏色要盡量做到柔和、低沉,在情緒上不要產生審美距離感。
湖面上的浴場

9h nine hours


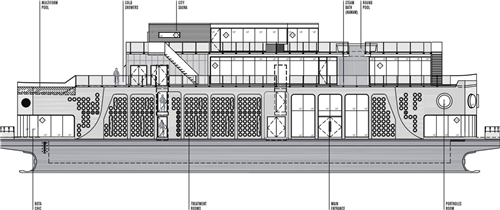
Sid Lee建筑設計工作室被委托作為Bota Bota的建筑和圖形的設計機構,要在傳統市區里設計一座具有現代感的復式水療中心。




建筑物的內部幾乎以全黑和深灰為主色調,這種設計給人的第一感覺是壓抑,這一點與人們認識的傳統水療機構有比較大的差別,這樣強烈的對比卻能讓客戶沉醉在寧靜而冥想的空間里,更好地享受水療。


用純灰色和白色作為主色調,是為了營造一個寧靜、安逸的獨立空間。墻上和室內的大型標識是為了客戶得到清晰、明了的指引。黑色的墻壁、清晰的標識、低矮的天花板、靜謐的空間、通過舷窗領略到的景色,讓人們不禁幻想自己在夢境中暢游。


9h nine hours是一個具有強烈品牌創意的地方。9H代表了他們提倡的生活理念就是1小時的梳洗、7小時的基本睡眠時間,以及1套干凈的衣服。




平面設計師、室內設計師和產品設計師在設計前期經過不斷地討論和研究,通過分享不同設計領域的設計理念,最終讓想法變成現實。就導視系統而言,墻體上和地板上的圖示符號清晰、明了地指明不同設施的位置,對于不同語言的外國游客同樣適用。




9h nine hours可謂是“麻雀雖小,五臟俱全”,在城市有限的空間里,膠囊房間的設計的確是一種新興的居住方式。

麥肯標識是一家為企業提供標識導視一站式解決方案的機構,憑借獨到的思考維度及完善的理論體系和實踐體系,探尋并捕捉品牌認知符號,從根本上找到屬于品牌的心智資源,讓品牌的觀點一目了然,提升品牌價值。